1. 서 론
2. 배 전용 영농형 태양광 시스템 개발
2.1 영농형 태양광 구조물 개발
2.2 접이식 구동 가변 시스템 개발
3. 배 생육 특성 및 이상기후 영향 분석
3.1 배 생육 특성 분석 결과
3.2 영농형 태양광 이상기후 영향
4. 일일 발전량 및 일사량 분석
5. 결 론
1. 서 론
정부에서는 “재생에너지 3020”정책으로 2030년까지 총 발전량 가운데 신재생에너지의 비중을 20%까지 달성하는 정책을 발표하였으며, 이중 태양광 발전에 할당된 용량은 36.5 GW이다. 또한 전체 보급 목표의 6분의 1 가량인 10 GW는 농촌지역 태양광 설치를 통해 달성할 예정이라고 발표했다1, 2). 결국 “재생에너지 3020”정책의 성공을 위해서는 농지 전용 및 산지 개간 등의 난개발을 피하고 수용성 개선을 고려한 태양광 발전 시스템의 보급이 필요하다.
최근까지 전 세계적으로 이상기후에 따른 폭염, 냉해, 폭우(설) 등의 자연재해가 지속됨에 따라 농업 및 다양한 산업에 미치는 피해가 극심하다. 프랑스와 이탈리아 등은 최근 기록적인 폭염이 지속되어 와인 생산용 포도의 재배지역이 점차 축소 혹은 북상하거나 고열 피해 및 농업용수 확보가 어려울 정도로 많은 피해가 보고되고 있으며, 반면 국내에서는 최근 봄철 냉해피해(서리 등)와 여름철 장기간 폭우 혹은 중대형급 태풍의 영향으로 국내 농업에 막대한 피해를 주고 있다.
따라서 농업의 지속성(시장 안정 및 이상기후 대응 등)과 재생에너지 수용성 개선을 위해 동시 병행이 가능한 영농형 태양광 발전 시스템(영농형 태양광, Agrophotovoltaic/APV) 개발 및 실증연구가 매우 활발하게 진행 중이다. 영농형 태양광은 독일(Fraunhofer ISE)의 A. Goetzberger와 A. Zastrow에 의해 처음 알려지기 시작하여(1981년) 현재까지 영농형 태양광 구조물 하부 작물 대상 구조물 개발 및 작물 재배특성 분류 등의 다양한 연구가 진행 중이다3). 그리고 2004년 일본에서는 나가시마 아키라 (長島 彬)에 의해 솔라 쉐어링(Solar sharing)이 처음 도입되어 최근까지 일본 내 영농형 태양광 발전 시설이 약 1,000개소 이상 보급되었다4).
국내의 경우 2016년 영농형 태양광 발전 시스템에서 쌀을 대상으로 첫 수확(농업회사법인 솔라팜(주))을 성공한 이후 농림축산식품부와 산업통상자원부의 재원으로 2016년부터 현재까지 영농형 태양광 표준 구조물 개발 및 대상 작물(벼, 감자, 배추, 마늘, 양파, 포도 및 배 등)의 표준재배기술 연구가 진행 중이다. 특히 최근까지 구축 된 국내 영농형 태양광 실증단지는 약 20개소로(약 1 GW) 수준으로 추산되며, 이를 활용한 다양한 작물을 대상으로한 실증 연구 및 개선형 구조물 적용 실증단지 구축이 진행되고 있다5, 6).
본 연구에서는 배 과수 대상 10 kW급 접이식 구동 가능 태양광 발전용 모듈 적용 영농형 태양광 발전 시스템을 개발하여 하부 배 과수의 생육 특성 및 수량 변화를 조사하였다. 또한 동시에 실증기간 동안 계절별 이상기후(특히, 태풍 및 냉해피해)에 대한 하부 배 과수의 영향을 조사하고자 한다.
2. 배 전용 영농형 태양광 시스템 개발
국내에서 개발 중인 영농형 태양광 발전 시스템(PV 모듈 규격 및 배치)은 하부 작물의 감수율은 최대 20% 이하를 목표로 하여 차광률 최대 30%를 넘지 않도록 한다. 일반적으로 배와 같은 과수는 일사량에 따른 과수의 품질 및 당도에 미치는 영향이 크고 동시에 계절 및 기후에 따른 과수의 피해가 민감하다.
따라서 본 연구에서는 배 과수를 대상으로 4×9 cell의 half-size 모듈(Fig. 1)의 효과적인 가변이 가능한 시스템을 개발하였으며 동시에 대상 배 과수의 생육 특성 및 이상기후에 대한 영향을 각각 조사하였다.
Table 1.
APV module details
| Model | JMP-150W-P36-G |
| STC (W) | 150 |
| Dimensions (mm) | 1,480×668×35 |
| Isc (A) | 8.53 |
| Voc (V) | 22.09 |
| Imp (A) | 8.08 |
| Vmp (V) | 19.81 |
| Efficiency (%) | 15.17% |
2.1 영농형 태양광 구조물 개발
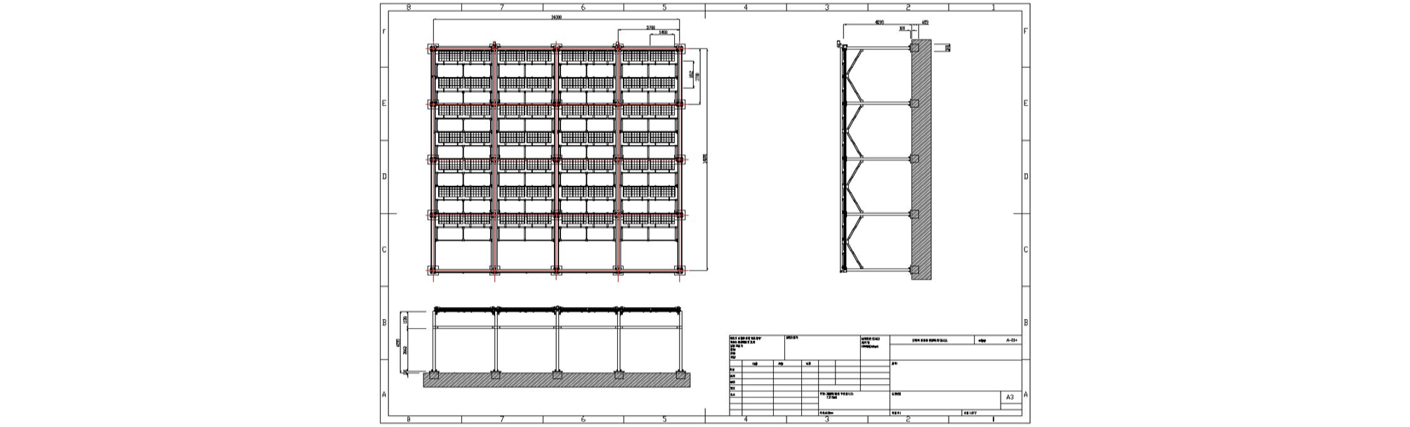
개발 구조물(가로×세로×높이)은 Fig. 2와 같이 14 × 14 m × 4 m 규격으로 하여 하부 배 과수에 대한 차광율을 최대 30%를 기준으로 150 Wp급 태양광 모듈(4×9 Cell Type) 총 56매를 적용하였다. 인버터는 단상 3.5 kW급 2대를 설치하였고, 태양광 모듈 어레이는 28직렬 2병렬로 구성하였다. 또한 본 시스템의 구조물 설계는 내풍압 강도 >30 m/s에 맞춰 적설 및 지진하중 등을 고려하여 설계하였으며, 해당 구조물은 전라남도 나주시 금천면 석전리 544에 설치하였다.
본 개발 구조물이 구축 농지 및 과수 생육에 대한 영향을 최소화 하기 위한 FRP 케이스를 활용한 독립기초 시공 후 개발 구조물을 각각 구축하였다.
2.2 접이식 구동 가변 시스템 개발
앞서 언급한 바와 같이, 배와 같은 과수의 품질은 일사량이 미치는 영향이 매우 크기 때문에 Fig. 3과 같이 일반적인 기계식 가변시스템 대신 모듈 가변이 효과적인 접이식 구동 가변시스템을 개발하였다(Fig. 4).
배 전용 태양광 발전 모듈 접이식 구동 시스템 개발을 위해 전동기, 견인 및 이동 장치 등을 각각 구성하여 개발하였다. 모듈-접이식 시스템의 이송 및 견인의 길이는 약 14.8 m로 설정하고, 300 kg 이상 구동(이송 및 견인)이 가능한 시스템을 개발하였으며, 접이식 구동 가변시스템은 2열마다 각각 설치하였다.
이때 접이식 구동 가변시스템의 파이프는 외경 42.7Ø, 내경 35Ø로 제작했고 특히, 32Ø 파이프를 이용하여 호닝 작업 시 오차율 ±0.5 mm를 준수하였다. 리니어 부쉬는 외경 35Ø, 내경 25Ø로 하였으며, 스프링은 총 길이는 1 m 내외로 하였다. 그리고 스프링의 내경은 25Ø, 외경은 28.5ر1 m를 이용하며, 해당 스프링의 수축률은 최소 30~40% 유지가 가능하도록 하였다.
3. 배 생육 특성 및 이상기후 영향 분석
Fig. 6과 같이 구축된 10 kW급 배 과수 전용 영농형 태양광 발전 시스템 하부의 배 과수 10그루에 대한 생육 특성(감수율, 과중, 과폭 및 당도 등)과 이상기후 영향 분석을 수행하였다. 또한 이에 대한 대조군은 일반 노지에 식재된 같은 품종의 배 과수 10그루를 선정하였다.
또한 해당 과수의 생육 특성 및 이상기후 영향분석은 단국대학교 생명자원과학대학 식량생명공학과 윤성탁 연구실과 실제 농민(김준 대표)에 각각 의뢰하였다.
3.1 배 생육 특성 분석 결과
Table 2는 2019년 해당 실증단지의 배 과수 생육 특성을 분석한 결과이다. 과중의 경우, 영농형 태양광 하부는 541.0 g 및 대조군 587.7 g으로 큰 유의성이 없으며(약 4.5% 감소), 과폭 역시 영농형 하부와 대조군의 유의적인 차이가 없었다. 과피색 L값은 대조군이 56.7로 영농형 하부(54.9) 보다 비교적 높게 조사되었으나, 과피색 a 그리고 b값은 영농형 하부 및 대조군 간 유의성을 보이지 않았다. 배 과실의 당도는 대조군이 11.0°Bx 그리고 영농형 하부는 9.67°Bx로 대조군 대비 약 1.3°Bx 감소하였다. 또한 과실조직감 중 경도, 점착성, 탄력성, 검성, 씹힘성 및 응집성 모두 영농형 하부와 대조군의 유의한 차이가 인정되지 않았다.
Table 2.
Growth analysis of pear
영농형 태양광 하부 배 과수의 상품적 품질을 좌우하는 과중 및 당도의 감소는 상부 영농형 태양광 발전용 모듈의 차광에 의한 일사량 감소로 배꽃의 개화 시기가 지연된 것으로 판단되나, 영농형 태양광 하부 배의 완숙기간을 2주 지연한바 과중이 약 8.5% 증가하였다. 그리고 영농형 태양광 배 과수의 당도는 최초(대조군과 동일한 수확 시) 9.67°Bx에서 10.4°Bx로 증가하여 대조군과 차이가 미미하였다. 이는 앞서 언급한 바와 같이, 최대 30%까지 일사량이 감소 됨에 따른 영향으로 판단된다. 이에 영농형 태양광 하부 배 과수의 생육 주기 및 출하 시기 제어가 가능한 영농형 태양광 하부 배 과수의 표준재배기술 확보가 필요하다.
‘19년, 1년간 영농형 태양광 하부 배 과수의 수확량 변화(감수율)를 조사한 바, 10a당 배 과수의 수량은 대조군(4403.0 kg) 대비 영농형 태양광 하부가 4106.7 kg으로 약 6.5% 가량 감소하였으나 처리구와 대조군의 수량 유의성이 인정되지 않았다.
‘20년 3월 2 m 이상 가지를 대상으로 영농형 하부와 대조군의 각각 6그루를 대상으로 화총(꽃눈)의 개수를 비교 조사한바, 영농형 하부의 화총의 평균은 62.9개, 대조군은 47개로 영농형 태양광 하부의 배 과수 화총이 약 34% 가량 증가하였다. 또한 Fig. 7과 Table 3은 방위 별 화총의 평균값을 각각 조사한 것으로, 영농형 태양광 하부의 방위 별 평균값 또한 대조군보다 많다는 것을 확인하였다.
Table 3.
Investigation of mean value of pear flower by azimuth (Unit : count)
| Nw. | SW. | SE. | NE. | Avg. | Increase (%) | |
| APV | 70.3 | 55.9 | 55.3 | 71.8 | 62.9 | 34% |
| Control | 48.8 | 52.8 | 41.2 | 58.0 | 47.0 | - |
3.2 영농형 태양광 이상기후 영향
3.2.1 태풍(강풍)
Table 4와 같이 ‘19년 제 13호 태풍 “링링”으로 인한 영농형 태양광 하부 배 과수의 낙과율을 조사한바, 영농형 태양광 하부는 약 85개 그리고 대조군은 약 138개가 낙과되어 대조군 대비 영농형 태양광 하부의 낙과율은 약 38.4% 가량 감소하였다. 이때 전라남도 과수 낙과 등의 피해는 최대 1,223 ha에 달할 정도로 피해가 막대하였다. 일반적으로 배 과수 등의 과수원에서는 태풍 혹은 강풍에 대한 피해(낙과 및 잎 찢어짐 등)를 최소화하기 위해 파풍망(혹은 방풍망)을 과수 주변 혹은 상부에 설치여 약 15~30% 수준의 바람 감속 효과를 유도한다. 이에 영농형 태양광 시스템 하부 배 과수는 해당 구조물과 상부 모듈이 최대 풍속 21 m의 강풍을 감속시켜 일반 노지 대비 낙과 피해를 최소화한 것으로 판단된다.
Table 4.
Comparison of pear fruit falling rates according to typhoon (13th Lingling, ‘19)
| APV | Control | APV vs control (%) | |
| Falling (%) | 85 | 138 | 38.4% |
전년과 마찬가지로 ‘20년 한반도에 다수의 태풍 영향을 받았으며, 특히 ‘20년 제9호 태풍 “마이삭”의 영향으로 나주지역 내 배 과수단지 100 ha에 피해를 줬다. 이때 영농형 태양광 하부 배 과수 낙과율은 1.73% 그리고 대조군은 4.75%로 각각 조사되었다. 전년 대비 태풍에 따른 강풍이 비교적 미미하여 태풍에 의한 낙과 피해는 적었으나 영농형 태양광 발전 시스템에 의한 배 과수의 낙과 피해는 일반 과수원(대조군) 대비 경미한 것으로 조사되었다.
3.2.2 냉해(서리)
일반적으로 과수(배)의 경우 동계~춘계 시기 일시적인 냉해 혹은 서리로 인해 화총이 고사하는 피해가 속출하고 있다. 이때 고사 된 화총은 갈색으로 변색되며 변색 된 화총은 결국 착과율을 떨어트려 해당 농가에 막대한 피해를 주고 있다.
‘20년 4월 4일~7일 사이 전남 및 광주광역시 인근에 급작스러운 저온으로 인한 서리피해가 발생하여 배 농가 중 최대 85% 가량 피해를 입었다. Fig. 9와 같이 일반 노지(대조군)의 화총은 대부분 갈변하여 씨방이 고사하였으나 영농형 태양광 하부의 배 화총은 대부분 온전한 상태로 유지되었다(Fig. 9 및 10). 이후 ‘20년 8월 영농형 태양광 하부와 대조군의 각 10그루를 선정하여 착과율을 조사한 결과 영농형 태양광 하부 착과개수는 634개로 대조군(463개) 보다 약 27% 증가했다(Table 5). 일반적으로 꽃눈 형성 시기에 대기 중에서 떨어지는 서리가 배꽃의 씨방에 떨어지게 되면 배꽃은 대부분 고사를 하고 이는 배, 사과 등과 같은 대부분의 과수는 실내가 아닌 실외에 노출되어 매년 갑작스러운 냉해(서리) 피해 발생 시 신속한 대응이 어렵다. 하지만, 영농형 태양광 발전 시스템의 경우 상부 모듈이 배꽃에 떨어지는 서리를 차단하여 냉해피해 방지가 가능할 것으로 판단된다.
4. 일일 발전량 및 일사량 분석
10 kW급 배 과수 전용 접이식 구동 영농형 태양광 발전 시스템의 발전량, 생육환경 측정 센서 및 실시간 모니터링 시스템은 ‘20년 3월경 구축하여 현재까지 실시간 모니터링 중이다. 적용 측정센서는 일사량 및 환경계측 센서(대기 및 토양 온 ‧ 습도) 등이며, 일사량 센서는 태양광 모듈 상부 및 하부에 각각 설치 하였다. 그리고 환경계측센서는 영농형 태양광 하부와 인근 배 과원에 각각 설치하여 비교분석 하였다. Fig. 11은 ‘20년 03월부터 12월까지 월별 누적 발전량 및 상 ‧ 하부 일사량을 조사한 결과이다. ‘20년 춘~하계 누적 발전량은 전년(‘19년) 대비 낮은 발전량을 보여주었는데 이는 해당 기간 동안 다수 태풍 및 긴 장마로 인한 것으로 판단된다.
Fig. 12는 ‘20년 중 일사량이 가장 일정한 05월의 월간 발전량과 영농형 태양광 외기(모듈 상부) 및 영농형 하부 일사량을 보여주고 있다. 해당 기간의 평균 발전시간은 약 4.7시간이며, 누적 발전량은 1,006.8 kWh, 그리고 월간 평균 발전량은 38.4 kWh로 각각 조사되었다. 또한 영농형 태양광 외기 및 하부 일사량 분포를 확인한 결과, 상부 모듈 배치는 차광율 30%를 기준으로 하였으며, 실제 영농형 하부에 도달하는 일사량은 월 평균 약 31.2% 수준의 차광율을 보였다. 그리고 매일 약 4회(오전 7 및 9시, 13시 그리고 17시)에 걸쳐 모듈과 모듈 사이로 일사량이 하부로 도달하는 것을 확인할 수 있었다. 이러한 결과를 바탕으로 추후 영농형 태양광 발전 시스템 하부 작물의 일사량 분포에 따른 최적 작물 위치 분석 및 모듈 가변 운용기술 최적화 실증연구 등을 수행 중이며, 영농형 태양광 시스템 하부 작물의 표준재배기술 확보 및 이상기후 대응시스템 운용기술을 확보하고자 한다.
5. 결 론
본 연구에서는 배 과수 전용 영농형 태양광 발전 시스템 개발을 위해 영농형 태양광 발전용 모듈의 이송-견인이 가능한 접이식 구동 가변시스템을 적용하여 차광율 0~30%로 조정이 가능하게 하였다. 이에 대한 영농형 태양광 하부 배 과수의 생육 특성(‘18~‘19) 및 이상기후 대응(‘19~‘20)에 대한 조사를 수행하였다.
영농형 태양광 발전 구조물 및 모듈에 의한 차광으로 같은 시기 과중 및 당도 등이 일반 노지 대비 감소하였으나 2주 완숙 후 큰 차이를 보이지 않았다. 또한 과폭, 과피색 및 산도 등 기타 생육 특성 분석 결과 큰 차이를 보이지 않았으며, 같은 시기 수확량은 대조군 대비 약 7% 감소하였다. 또한 영농형 태양광 발전 시스템은 태풍 및 냉해(서리) 등 이상기후로부터 하부 배 과수의 착과 개선 및 낙과율 감소 등의 효과를 보였다.
영농형 태양광 시스템 하부 구조물에서 냉해, 폭염, 태풍 등 매년 불규칙적으로 발행되는 극단적 이상기후에 대한 운용기술 도출 그리고 과수의 안정적 품질 및 수량 확보를 위한 표준재배기술 개발이 필요하다.













) Monthly power generation, (●) Monthly atmospheric solar irradiation and (∇) Monthly solar irradiance under APV
) Monthly power generation, (
) Monthly atmospheric solar irradiance (
) Monthly solar irradiance under APV